VG - Endschalter IP67
Artikelnummer: 95.038 143.xxx
Alte Artikelnummer: 92.038 143.xxx
- Alu-Gehäuse
- IP67
Merkmale
Die Kiepe Positionsschalter Typ VG werden als Endlagenschalter in Anlagen mit rauen Betriebsbedingungen eingesetzt, z.B. in Verlade-, Misch- und Transportanlagen für Schüttgüter; Hüttenwerks-, Stahlwerks- und Gießereianlagen; Bau- und Holzbearbeitungsmaschinen; Kläranlagen. Die Taumelstab-Variante kann z. B. auch als Knie-Schalter/- Taster eingesetzt werden, wenn keine Hand frei ist. Der Kiepe Positionsschalter Typ VG ist konform zur Niederspannungsrichtlinie 2014/35/EU und UKCA Konformität liegt vor. Er hat ein robustes Aluminium-Gehäuse und kann mit bis zu 2 zwangsbetätigten Öffner- und Schließer-Kontakten mit Sprungfunktion ausgerüstet werden. Er besitzt fixe Schaltpunkte.
Hinweis Die Positionsschalter dürfen nur in Steuerkreisen eingesetzt werden.
Korrosiv
- Pulver
- Bedingt geeignet
- Kies
- Bedingt geeignet
- Geröll
- Nicht geeignet
Nicht korrosiv
- Pulver
- Geeignet
- Kies
- Geeignet
- Geröll
- Nicht geeignet
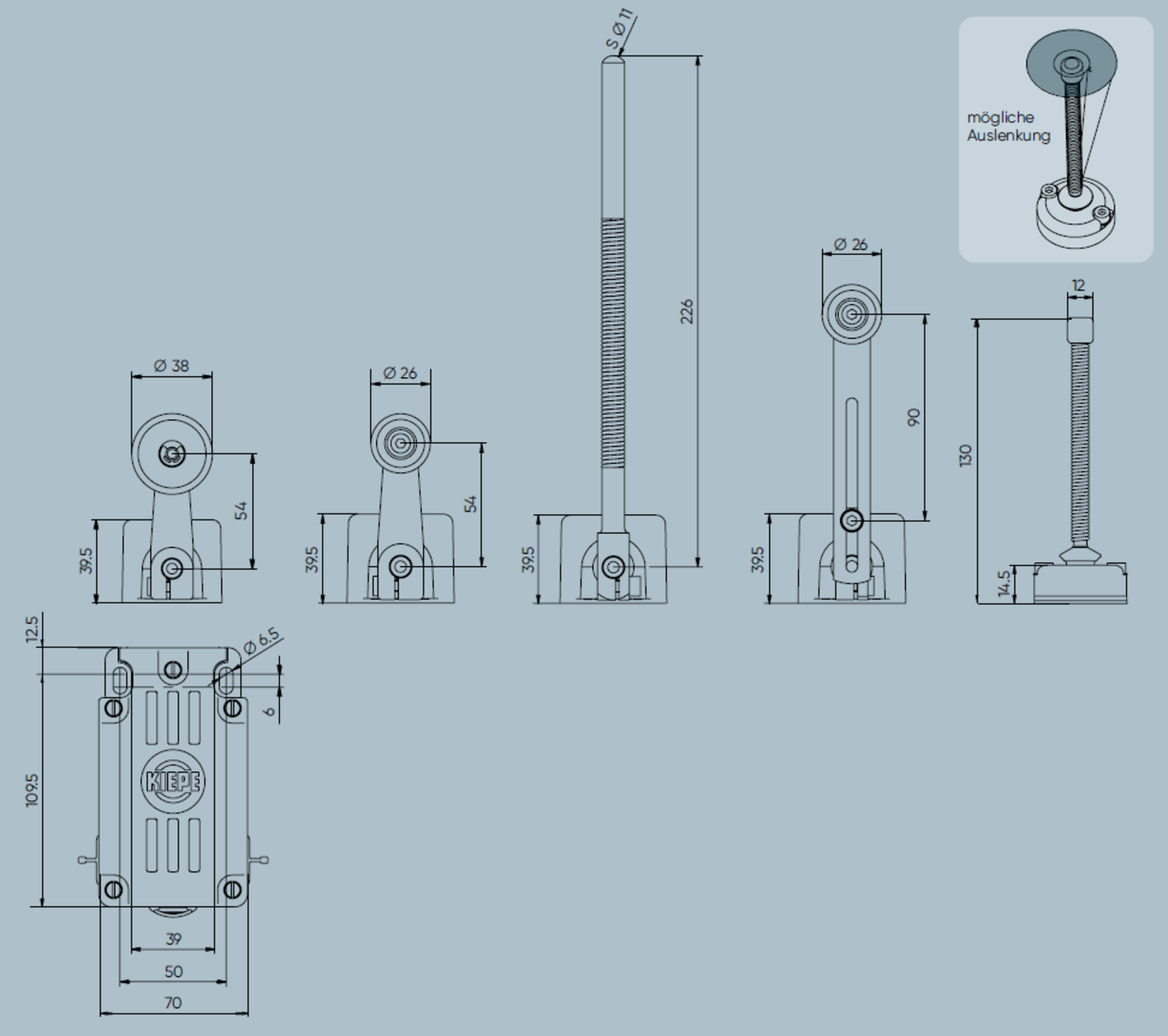
Der Endschalter Typ VG schaltet, wenn die Betätigungsrolle in Drehrichtung des Rollenhebels vom Maschinenteil angefahren und ausgelenkt wird. Der Positionsschalter VG xxx/4 mit Taumelstab schaltet wenn sein Federstab entweder seitlich in jede Richtung oder auf Druck betätigt wird. Die Schaltwinkel sind fix. Eine Vorwarnung bei zwei Schaltkontakten ist realisierbar. Bei Rückstellung des Maschinenteils stellt sich der Hebel wieder selbsttätig
| Bezeichnung | Endschalter Typ VG |
|---|---|
| Betätigungsart | Bidirektional (zweiseitig wirkend) über Rollenhebel |
| Erfüllte Vorschriften | DIN EN 60947-5-1 |
| Geeignet für | Steuerkreise nach DIN EN 60204-1 |
| Gehäuse | Aluminium |
|---|---|
| Beschichtung | PU 2K-Lack gelb, RAL 1004 |
| Rollenhebel | siehe Zeichnung S. 4 |
| Befestigung | 2 x M6 |
| Auslenkung Rollenhebel (max.) | +/-90° |
| Gewicht | Schwenkhebel-Variante 0.8 kg Taumelstab-Variante 0.5 kg |
| Schaltsystem (max.) | 2 Sprungschalter NO/NC, zwangsöffnend |
|---|---|
| Schaltbereich | +/- 12° fix |
Leitungseinführung (im Lieferumfang enthalten) | 3 x M20 x 1,5; mit roter Transportsicherung verschlossen (1x PA Kabelverschraubung; Dichtbereich Ø 6mm bis Ø 12mm; 2x Verschlussschraube |
| Gebrauchskategorie | AC-15: 250 V; 0,75 A DC-13: 125V; 0,22 A DC-13: 24 V; 2 A |
| Anschlussleitungsquerschnitt (max.) | 2 mm2 |
| Schutzleiteranschluss | Schutzklasse I / Schutzerdung |
| Bemessungsisolationsspannung Ui | 500 V |
| Bemessungsstoßspannungsfestigkeit Uimp | 4 kV, Überspannungskategorie III, Verschmutzungsgrad 2 |
| Thermischer Dauerstrom Ith | 2,5 A |
| Zulässige Umgebungstemperatur | – 25°C… +70°C |
|---|---|
| Gehäuseschutzart (nach EN 60529) | Schwenkhebel-Variante IP65 / IP66 / IP67 Taumelstab-Variante IP65 |
| Kontaktzuverlässigkeit | 100.000 Betätigungen bei AC 400V / 2 A;cos phi 0,8 DC 30 V / 2 A; L/R=5ms |
|---|
VG (xxx/1/2/3/9) mit Schwenkantrieb Der Endschalter VG mit Schwenkantrieb wird mit 2 M6 Schrauben auf der Unterkonsturkion befestigt. In der Einbauposition werden sie durch bewegliche Maschinenteile angefahren. Der Anfahrwinkel der Schaltgeometrie darf 45° nicht überschreiten. Der Rollenhebel ist austauschbar und kann in den Drehrichtungen auf der Schalterachse frei fixiert werden. Der Kopf mit dem Rollenhebel kann beim Typ VG zusätzlich in 90° Schritten montiert werden. Dadurch ergeben sich mehr Positioniermöglichkeiten. Der elektrische Anschluss erfolgt bei geöffnetem Gerät über die im Lieferumfang enthaltene Kabelverschraubung direkt an den Anschlussverschraubungen der Schaltelemente.
VG (xxx/4) mit Taumelstab Der Positionsschalter VG xxx/4 mit Taumelstab wird mit 2 M6 Schrauben auf der Unterkonsturktion befestigt. Er kann durch beliebe Betätigungen in den Achsrichtungen ausgelöst werden. Der Taumelstab ist federnd es muss deshalb darauf geachtet werden, dass die Feder im Betrieb nicht beschädigt wird. Der Taumelstab kann nur mit dem VG Kopf ausgewechselt werden. Der elektrische Anschluss erfolgt bei geöffnetem Gerät über die im Lieferumfang enthaltene Kabelverschraubung direkt an den Anschlussverschraubungen der Schaltelemente.
Hinweis Die roten Transportsicherungen müssen vollständig entfernt und durch die mitgelieferten Verschraubungen ersetzt werden.
Varianten
| Name | Bestellnr. | Gewicht | Kontakte Ö S W | Betätigungshebel | Verriegelung | Druckausgleich |
|---|---|---|---|---|---|---|
| VG 03/1 | 95.038 143.101 | 0.7 kg / 1 Stück | 1 1 | Kunststoffrolle | ||
| VG 033/1 | 95.038 143.111 | 0.7 kg / 1 Stück | 2 2 | Kunststoffrolle | ||
| VG 03/2 | 95.038 143.201 | 0.7 kg / 1 Stück | 1 1 | Kugellagerrolle | ||
| VG 033/2 | 95.038 143.211 | 0.8 kg / 1 Stück | 2 2 | Kugellagerrolle | ||
| VG 033/21 | 95.038 143.262 | 0.8 kg / 1 Stück | 2 2 | Kugellagerrolle | 15° | Verfügbar |
| VG 03/3 | 95.038 143.301 | 0.5 kg / 1 Stück | 1 1 | Federstab | ||
| VG 033/3 | 95.038 143.311 | 0.5 kg / 1 Stück | 2 2 | Federstab | ||
| VG 03/9 | 95.038 143.401 | 0.8 kg / 1 Stück | 1 1 | Kugellagerrolle einstellbar | ||
| VG 033/9 | 95.038 143.411 | 0.8 kg / 1 Stück | 2 2 | Kugellagerrolle einstellbar |
Downloads
Sie haben eine Frage? Wir sind für Sie da!
Wir freuen uns von Ihnen zu hören. Wir beraten Sie gerne und helfen Ihnen bei der Auswahl des richtigen Produkts.

